Relevés 3D & Plans Architecturaux Roquebrune-Cap-Martin Alpes-Maritimes (06)

Villa de prestige
à Roquebrune-
Cap-Martin

Scanner FARO Focus S70 Nuage de points 3D Plans architecturaux Vue mer Méditerranée
Description du projet
01

Villa de standing à Roquebrune-Cap-Martin, avec vue sur la Méditerranée.

  • Relevé complet de l'existant pour accompagner les études de conception
  • Mission confiée par l'équipe d'architecture en charge du projet
  • Acquisition de l'ensemble des volumes intérieurs et extérieurs du bâtiment
02

Relevé réalisé au scanner laser 3D FARO Focus S70 — capture de plusieurs millions de points par station.

  • Numérisation complète des façades extérieures
  • Relevé de tous les espaces intérieurs
  • Génération d'un nuage de points 3D reproduisant fidèlement la géométrie du bâtiment
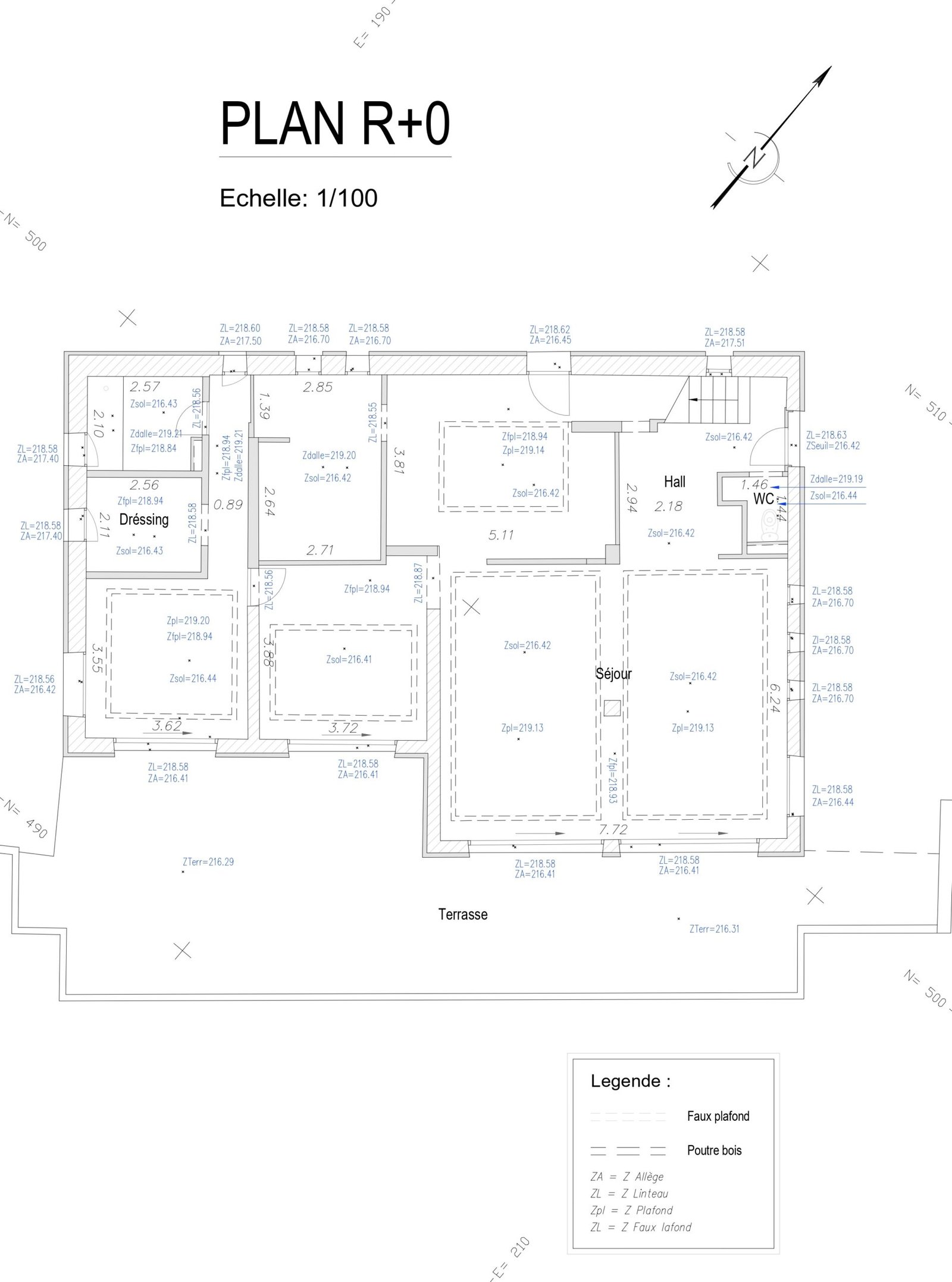
03

Plans architecturaux produits à partir du nuage de points :

  • Plans détaillés des niveaux intérieurs
  • Plans des façades
  • Base graphique précise destinée aux architectes et intervenants du projet
04
Le scanner 3D a fourni une représentation exhaustive et précise de l'existant — un support fiable pour les études architecturales et les futurs travaux. Les illustrations présentent la propriété ainsi que des extraits des plans issus du relevé.
FAQ

QUESTIONS FRÉQUENTES

TOPOTECH GEOMATICS intervient pour les relevés topographiques, les plans de terrain, les relevés 3D, les plans architecturaux, les calculs de déblais/remblais, l’implantation d’ouvrages ainsi que les contrôles altimétriques et les contrôles après construction.

Nos prestations s’adressent aussi bien aux professionnels qu’aux particuliers : architectes, maîtres d’œuvre, entreprises, bureaux d’études, propriétaires, porteurs de projets de construction ou de rénovation.

TOPOTECH GEOMATICS intervient principalement dans les Alpes-Maritimes (06) et le Var (83).

Oui. Nous effectuons des relevés par scan 3D afin de capturer précisément l’existant d’un bâtiment ou d’un ouvrage et de produire une base fiable pour les études techniques et l’établissement de plans.

Contactez-nous par téléphone au 07 75 75 86 48 ou par email à geomaticstopographie@gmail.com. Nous vous garantissons une réponse et un devis sous 24 à 48 heures.

Précisez la localisation du projet, le type de prestation souhaitée, la nature du site ou du bâtiment, ainsi que les plans ou documents déjà disponibles.

Vous avez un projet ?

CONTACTEZ-NOUS DÈS AUJOURD'HUI

Téléphone

07.75.75.86.48

Email

geomaticstopographie@gmail.com

Adresse

24 Avenue Sidi Brahim, 06130 Grasse

Horaires

Lundi - Vendredi : 8h / 18h
Progress Line — Topotech Geomatics

TOPOTECH GEOMATICS — 2026 All Right Reserved